幸武ララ・シティズ101 南ゲート 1
POINT
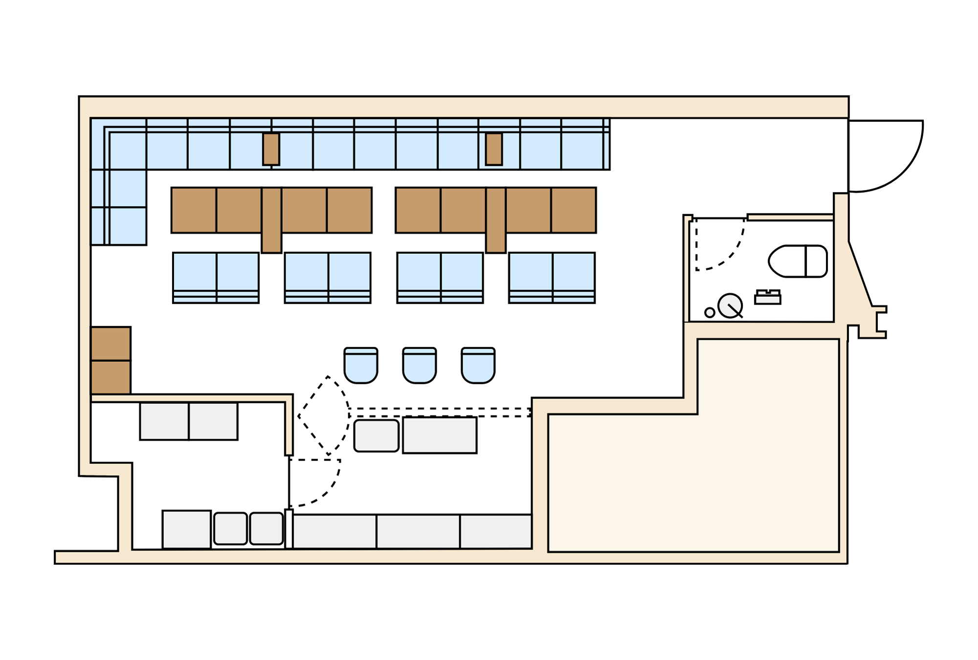
床面積:12.5坪(41.40㎡)
保証委託料:初年度140,525円(税込)・次年度以降毎年20,075円(税込)
保証会社:エルズサポート(株)加入
開業に最低必要なものは、お酒・グラス・食材・食器・備品・消耗品等です。個人差はあります。
開業資金等での銀行へのご相談、紹介も承ります。
茨城県保健所 飲食店許可建物
電気:東京電力
ガス:エネンサンス関東
飲用水:神栖市水道
排水:神栖市下水道
幸武ララ・シティズ101内の各店舗の部屋の内容は異なりますので、あらかじめご了承ください。
物件概要
| 共益費・管理費 | 5,500円 | ||
|---|---|---|---|
| 敷金 | 1ヶ月 | 更新料 | 195,250円 |
| 所在地 | 茨城県神栖市神栖四丁目 幸武ララ・シティズ101 南ゲート 1 |
|---|---|
| 交通 |
| 築年月 | 2025/12 | 新築/中古 | 新築・未入居 |
|---|---|---|---|
| 面積 | 41.40m² | 計測方式 | |
| バルコニー | 向き | 北 | |
| 建物階数 | 地上1階 | 部屋階数 | 1階 |
| 建物構造 | W造平屋建て | ||
| 間取内容 |
客席・カウンター・厨房・トイレ |
||
| 現況 | 即入居可 | 取引態様 | 貸主 |
| 駐車場 | 120台(専用2台) | 引渡/入居時期 | 即時 |
| 周辺環境 | 近隣にコンビニ・スーパー・量販店等有 | ||
| 設備・条件 | ガスコンロ 冷蔵庫 エアコン プロパンガス 公営水道 排水下水 駐車場有 家具・家電付 ボックス13席(アルコ)+接客用8席=計21席、コーナー1席、スツール2席、カウンター3席、肘置×2、衝立×2、モニター42型3台32型1台、冷蔵庫、電子レンジ、タオル冷温機 |
||
| 物件番号 | |||
| 自社物 | 自社物 | 状態 | 空有 |
地図
Loading...














